About the Property
| MLS # | 202612353 |
| Status | Pending |
| Property Type | Residential |
| Property SubType | Condominium |
| Square Feet | 841 sqft |
| New Construction | No |
| Stories Total | 1 |
| Type | Condo/Villa |
| Bedrooms | 1 |
| Bathrooms | 1 (1 Full) |
| Year Built | 2006 |
| Days On Market | 20 |
| Design | Ranch |
| Cooling | Central Air |
| Heating | Forced Air |
| Garage | N/A |
| Garage Spaces | N/A |
| Sewer | Public Sewer |
| Fencing | Privacy, Vinyl |
Financial
| Year Taxes Payable | 2026 |
| Assoc. Dues | $214.00 Monthly |
Request More Info
From Lynch Rd. Heading North on Green River, Turn Left onto High Tower Dr. then Right onto Porterfield Dr. Right onto Legacy Run then Right onto Boston Way. Home will be on the Left.
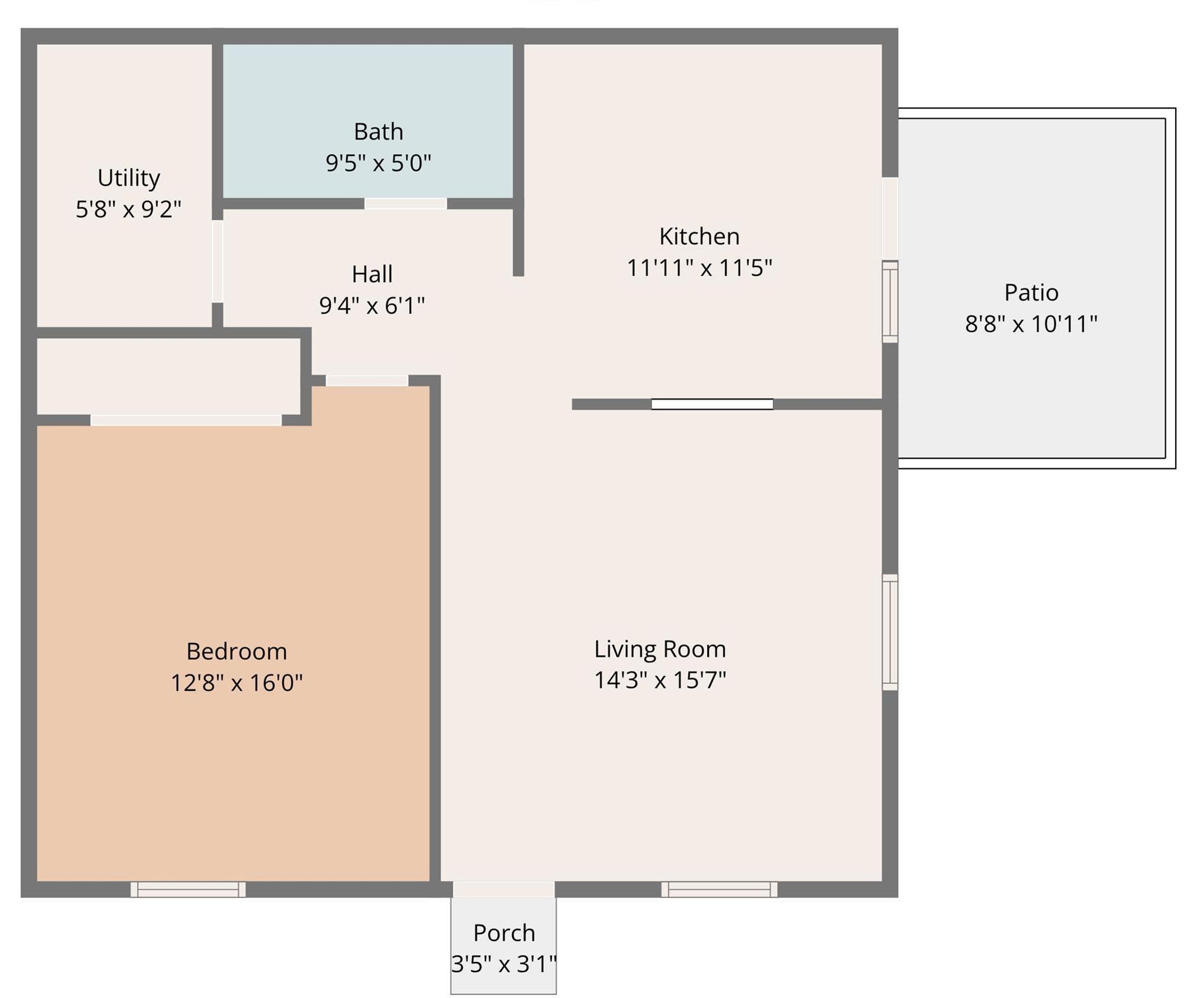
841
Sq. Ft.
1
Bed
1
Bath
Wake up to peaceful lake views at Heritage Condominiums at Keystone. This charming 1 bed, 1 bath condo checks every box for buyers who want a low maintenance, move in ready home with real quality of life built in. The generous living room flows through a pass through window into a kitchen loaded with cabinet space, tile floors, a full appliance package; and French doors that open onto your private patio. A dedicated utility room keeps laundry tucked away and out of sight. Whether you're buying your first home or downsizing your life, this home delivers the rare combination of affordability, community, and a lakeside setting. At just $214/month, the HOA covers outside maintenance, grounds maintenance, snow removal, trash collection, insurance.
Amenities
Master Downstairs
Sale Includes:
- Dishwasher
- Microwave
- Refrigerator
- Washer
- Electric Range
- Electric Water Heater
- Dryer
- Water Heater
Map & Directions:
About the Property
| MLS # | 202612353 |
| Status | Pending |
| Property Type | Residential |
| Property SubType | Condominium |
| Square Feet | 841 sqft |
| New Construction | No |
| Stories Total | 1 |
| Type | Condo/Villa |
| Bedrooms | 1 |
| Bathrooms | 1 (1 Full) |
| Year Built | 2006 |
| Days On Market | 20 |
| Design | Ranch |
| Cooling | Central Air |
| Heating | Forced Air |
| Garage | N/A |
| Garage Spaces | N/A |
| Sewer | Public Sewer |
| Fencing | Privacy, Vinyl |
Financial
| Year Taxes Payable | 2026 |
| Assoc. Dues | $214.00 Monthly |
Dimensions & Additional Detail
| Exterior | Brick |
| Lot Dimensions | .0 |
| Bedroom 1 | 16 x 12 Main Level |
| Kitchen | 12 x 11 Main Level |
| Laundry | 9 x 5 Main Level |
| Living Room | 15 x 14 Main Level |
Schools
| School District | Evansville-Vanderburgh School Co |
| Elementary School | Oakhill |
| Middle Or Junior School | North |
| High School | North |
Location
| County | Vanderburgh |
| Subdivision | Heritage Condominium At Keystone |
| Township | Center |
| City | Evansville |
| State | IN |
| Zip | 47711 |














